躯体性能がHEAT20のG3に近づいてくると、日射の生かし方や換気空調の考え方も変わってくる。超高性能な躯体を最大限に生かす設計手法について、建築家の西方里見氏(西方設計)に取材。近作「秋田東通りの家」を題材にして紹介する。
「秋田東通りの家」の概要

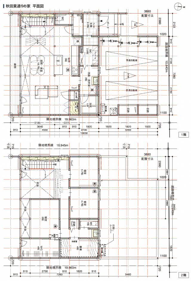
◉最初に題材となる建物の概要を紹介。秋田市内の近隣商業地域に建つ木造2階建て住宅。敷地面積216.25m2、延床面積167.94m2(そのうちインナーガレージ39.74m2)
◉住まい手は40代の夫婦と子供2人。主な要望は暖かくて明るく、開放的な空間であることと板張り外壁による四角いボックス型のファサード
◉建物のQ値は0.853、UA値は0.30、C値は0.38。長期優良住宅の認定取得。建設費はウッドショック前の価格で約3900万円。2022年2月段階で計画すると約500万円上乗せになる
断熱性能は「G2.5」が標準

◉同社では提案する断熱性能を標準と推奨の2つに分けている。推奨はHEAT20におけるG3(住宅性能表示で新設される等級7)、標準はG2とG3の間の「G2.5」(同等級6.5)。どちらを採用するかは予算による
◉G2.5とG3の主な違いは壁の付加断熱と窓の仕様。G2.5は付加断熱が高性能グラスウール105mm厚で窓はAPW430。G3は付加断熱210mm厚、窓は木製サッシスマートウィン・・・・
【残り2030文字、写真10枚】
続きは、『新建ハウジング別冊・月刊アーキテクトビルダー2022年3月号/最新事例に学ぶ高性能住宅【設計施工】セオリー』(2022年2月28日発行)P12~に掲載しています。
住宅ビジネスに関する情報は「新建ハウジング」で。試読・購読の申し込みはこちら。




























