
リビングは娘たちの一番のお気に入りの場所。壁の塗装は家族も参加して行った
中古マンションのリノベの過程をメディアや業界関係者向けに公開してきたリノベる(東京都港区)広報担当の田形梓さんは、そのリノベ工事が完了したことから、このほど個別完成内覧会を開いた。田形さんは「完成状態はSNSなどでも多く見るが、リノベの過程を知る機会は一般的にあまり多くない。家族の協力を得て、昨年から複数回にわたって性能やデザイン、コスパを含めて発信し続けたことで、その価値やノウハウへの理解を深めてもらえた」と手応えを語る。
今後、国内でストック活用需要が増加していく流れを踏まえて田形さんは「既存のものをどう生かしていくかという視点が住宅事業者には、ますます必要になってくる。ストック需要の高まりに備えて、今後も工務店などの弊社パートナー企業と協力して、共にリノベ市場を盛り上げたい」と訴える。
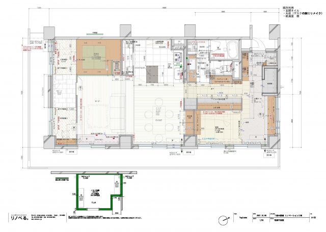
リノベが完了した調布市内にある築46年のマンションでは、田形さん夫婦と小・中学校に通う娘2人の4人家族が暮らす。鉄筋コンクリート造7階建ての5階にある角部屋で、100m2超の広さ。設計はリノベる、施工は同社のパートナー工務店が手がけた。工事費は1600万円、総費用は2100万円。
インナーバルコニーで“縁側”
リノベにあたり、それまで建売で暮らすなかで感じていた不満を解消しようと、「平屋のようなフラットで家事動線の優れた空間設計を意識した」という。L字型の大きなバルコニーという角部屋ならではの特徴を生かした。掃き出し窓からリビングを介さずに子ども部屋に出入りすることも可能。リビングとつながる約5cm下げたモルタル仕上げのインナーバルコニーは“縁側”のようなイメージで、天気がいい日に窓を開放すれば“半外”のように開放的な空間となる・・・・・
【残り514文字、写真3点など】
続きは、最新号『新建ハウジング4月20日号 6面』に掲載しています。
住宅ビジネスに関する情報は「新建ハウジング」で。試読・購読の申し込みはこちら。































