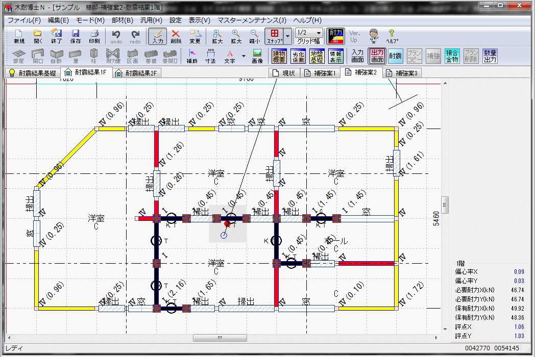
エイム(埼玉県川口市)は、同社の一般耐震診断ソフト「木耐博士N」が、一般財団法人日本建築防災協会の木造住宅耐震診断プログラム評価を取得したと発表した。
2012年6月に改定された「木造住宅の耐震診断と補強方法」に準拠。N値計算機能を標準搭載しており、N値に対応した接合金物を選定する機能も付いている。補強プランの自動生成機能も付いており、補強設計を支援する。
利用料金は、3年プラン(1095日間)5万4600円。無料の体験版もある。詳しくは同社のホームページから。
住宅ビジネスに関する情報は「新建ハウジング」で。試読・購読の申し込みはこちら。
岡本銘木店 丹波篠山工場 第3期工事構造見学会
【工務店ブランディング&SNS運用セミナー】顧客から選ばれる工務店に変わる!指名を勝ち取るためのマーケティング手法
JCA・デコスセミナー2026「高断熱住宅の結露・カビ徹底対策」
電 話:03-3556-5525 F A X:03-3556-5526 メール:[email protected]