グラフィック社(東京都千代田区)は、書籍『部位別 住宅納まり図集』を8月に発売する。
著者は、早草睦惠(セルスペース代表)、彦根アンドレア(彦根建築設計事務所)、伊礼智(伊礼智設計室)、納谷学(納谷建築設計事務所)、廣部剛司(廣部剛司建築研究所)、関本竜太(リオタデザイン)、丸山弾(丸山弾-スタジオ)、村山徹+加藤亜矢子(ムトカ建築事務所)、森田悠紀(森田悠紀建築設計事務所)、富永大毅(富永大毅建築都市計画事務所)+藤間弥恵(TATTA取締役)、佐々木勝敏(佐々木勝敏建築設計事務所)、五十嵐理人(IGArchitects)。

建築家12組の住宅を通して、ワンシーンに込められた「納まり」を解説した詳細図集。設計における「納まり」には、技術的なことに加え、設計者の思想、美意識、空間に対する態度が現れるという。
同書では「玄関・アプローチ」「キッチン・水廻り」「リビング・ダイニング」「階段」「開口部・枠廻り」「屋根・外構」の部位ごとにわけ、52項目を収録。写真と図面を対応させることで、空間に対する態度=「建築の言葉」を明らかにする。また、各著者によるコラムも掲載している。
B5判、オープンバック製、256ページ。税込3960円。

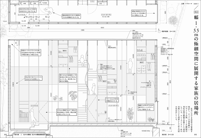
【玄関・アプローチ】
竪の家:佐々木勝敏(佐々木勝敏建築設計事務所)

竪の家/解説
住宅ビジネスに関する情報は「新建ハウジング」で。試読・購読の申し込みはこちら。































