
海外が注目する象徴文化としての「京町家」
コロナ禍以降の世界的な住宅建材需要のアンバランス、インフレ直撃のあおりを受けて住宅コストが急上昇し、折からの円安基調もあって住宅価格が異常に高騰。国内の需要を直撃し、大きく住宅需要が減衰している。
こうした趨勢は一時的である部分と、長期間継続する部分とがあると思える。国内の住宅企業にとっては市場環境の動向を長期的に把握することがきわめて重要になってくる。
戦後一貫して続いた産業人口の大都市集中によって継続してきた都市圏での新規住宅を求める「核家族化」とも呼ばれた流れ。長く継続したその基本的な「住宅需要」に大きな変化が起こりつつある。人口減少局面が今後の大きな趨勢であることが明らかになって、そういった都市・核家族化需要の1本足打法の限界が露呈しつつある。
一方で、それまでの既成の住宅需要とはまったく違う需要、スノーレジャー拠点としての北海道ニセコ地域での欧米圏からの富裕層による需要拡大をこの連載企画の最初に論考したけれど、ほぼ同様のことが京都においても起こっている。
《関連記事》
豪州資本と共に「ニセコ」を世界ブランドに育てた地域工務店
ニセコにおいては、スイスなどヨーロッパでの高級スキーリゾート需要の全世界への拡大が、オーストラリアの人びとが主導するかたちで「より近くて、雪質も良い」北海道のニセコをターゲットにしたという起点があったけれど、そのことは世界的な航空輸送の利便性向上、観光需要の高まりなどがそうした動向を促進していた。
その根源に思いを致せば、温暖地域ニッポンの世界的な「リゾート」地域として”KYOTO”が注目されるのはごく必然の流れであると思える。しかし京都の場合、その街並みに特徴的な「京町家」はきわめつけの伝統的日本家屋であり、現代的な「居住環境性能」を満たしてはいないことがネックだった。実際に海外からの購入需要はあるけれど、一時期住んだとしても数年して手放すということも側聞されていた。京都の底冷えする冬の寒さ、夏のうだるような暑さへの居住環境に対する性能対応が欧米人の許容レベルとは隔絶していたということだろう。
しかし近年、そういう問題点を改善できる作り手による住性能向上型の京町家改修事例が出現してきて、徐々に状況に変化をもたらしてきている。

京町家K氏邸外観。通りに面した間口が狭く、中庭を挟んで手前側がA棟。渡り廊下を通って奥にはB棟。間口幅に対して税が掛けられたことから中庭を囲んで細長く家屋を作った。中世由来の日本的都市住宅文化の精華と思える

室内空間にはクジラの潮吹きの日本画ふすま絵がプロジェクターで投影されたりする。すばらしい音楽とともに感応する空間。和の都市住宅を愛した施主さんの心底が伝わってくるような見事なインテリア空間
京町家の住宅性能向上に寒冷地・盛岡からの技術導入

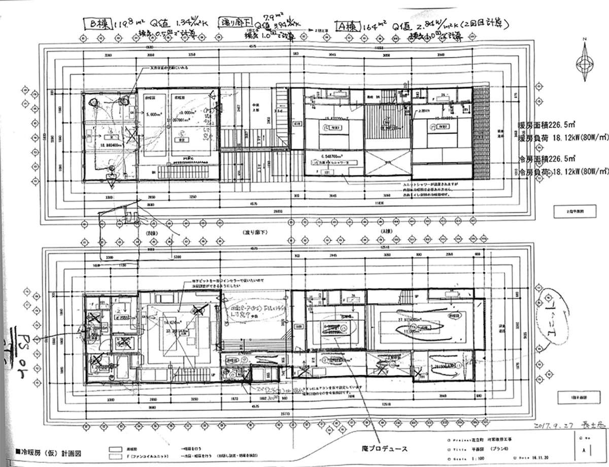
[図面]外観写真とは方向が逆になっているが、右側がA棟で左側がB棟。間口が狭く奥行きが長い敷地条件に即して、しかし中庭で自然との「呼吸」も図られている。日本の都市居住の究極的な伝統的叡智を深く伝えてくる
トップの写真とこちらの[図面]は、京町家の「断熱改修」に取り組まれた盛岡在住の住宅技術者・長土居正弘氏から寄せられた事例とデータ。世界のIT企業で活躍された施主のK氏が、京町家の文化性に強く惹かれてこの住宅を購入後、居住性能の劣悪さに対して「断熱性能向上」を希望され、それに応えるために改修された事例。もちろん大前提として町家の風情を保つことがマスト条件。
施主のK氏は以下のように改修目的を述懐されている。
「この町家改修の柱、もしくは実験の一つが『暑くて寒い』と言われる町家に国際的基準の断熱気密を施して、気持ちのよい室内気候を作ること。エネルギー収支を減らすこと。それによって未来に繋がる町家の姿を見ることだった。ところが調べているうちにちゃんとした断熱気密を京町家改修でやるのは難易度が高く、おそらく京都では誰もやったことがないことがわかってきた。難しいのでやったことがない。誰もやったことがないからやり方がわからない。京都にはその経験がない。なら私がその最初になってやろう」と。居住環境探究に取り組んできた北海道人として、まことに共感できるフロンティアスピリットである。
さらに、「伝統的な日本家屋は熱的にスカスカだ。アジアモンスーン気候の夏の蒸し暑さを、風通しによって和らげる構造。冬はさほど厳しくなく、部分暖房でなんとか行ける。空気を冷やす技術が十分ではない時代、この構造は合理的だった。色々工夫はあれど、温度調節に限度があるので、暑さ寒さはガマンが基本。その中で少しでも快適に過ごすための生活の知恵が色々生まれ、文化となった」と。
改修としては、ほとんど隣地の建物との相対距離がなく工事手法が限られた中で、なお開放型そのものの伝統的木造建築の建て方であり、建材や購入動機である内外装の好ましいデザイン性を極力「そのまま」とするという極限的な制約の中で、現代の断熱技術でできる限りの改修を行った。
もちろん完全に寒冷地住宅並みというワケにはいかず、意匠性と対話しつつ、どこまで手を入れることが可能か、現場判断で取捨選択した結果と言える。結果として熱損失係数としては3.0レベルの結果がもたらされた。
この断熱改修は現在のUA値に基づく次世代基準ではなくQ値基準で設計が行われていた。ちなみに当時の「次世代基準」としては京都は5地域で「2.7」とされていたので、その基準からはやや劣る程度の住宅性能レベルとなる。が、工事足場も掛けられないような現場で、しかもリフォームという事情を考えれば、既存の”スカスカ状況”に対しては相当の高性能レベルと言えるだろう。
以下、リフォーム前と後の写真を見比べながら設計施工に当たっての細部について。
こちらのA棟に関しては、現代にはない建築材料と、現代には継承されていない風合いの施⼯のため意匠の観点から、内部仕上げをそのままにした。現状の外観、⻑屋の⾵情を残し、厚ぼったい断熱化はしたくない。できればスマートな断熱化が⽬標。こうした方針から屋根断熱を施すことにして、外壁以外の間仕切り壁に気流止めと吸音目的で断熱材を充填することとした。断熱・気密・通気の連結が確保されるかどうか、綱渡り的な手探りが行われた。

通りに面した外観。左が改修前、右が改修後
A棟に対して中庭を介して奥になるB棟は断熱化・気密化が水準以上の成果が出せたので暖房・冷房・換気は自動化が可能となった。A棟に関してはB棟と改修可能のレベルに差異があり使用上・体感上も差異が出てくると考えられる。自然との対話をしながら、暖房・冷房温度、通風の調整が必要と予想される。

しかし逆に言えば、これは京都らしい風情を感じ生活する、という与条件への「解」に繋がる。既存の京町屋自体も自然を受け入れ、四季を受け入れ京都の土地のくらしを楽しんで来た経緯があり、京町屋を現代の生活様式・快適レベル・省エネ環境に最大限近づける努力の結果と言える。
「暮らしの器」としてのベースは京町屋であり、住まい手の努力も欠かせない。見方を変えれば、そこに現代風の京町家暮らしの新たな発見もあると言えるだろう。
《次回に続く》
住宅ビジネスに関する情報は「新建ハウジング」で。試読・購読の申し込みはこちら。






























