
プラスワンで長年にわたり続いてきた「住まい手に聞くリフォームの本音」連載が、「新建ハウジングDIGITAL」に場所を移して隔月20日配信で再開する。本連載は、リフォーム後に建て主を取材し、経緯を振り返ってもらっているが、今回は運よく契約前から建て主を取材する機会を得た。物件購入から請負契約、引き渡しといったリフォームの進捗に合わせ、建て主の声を伝えていく。

大菅 力(おおすが・つとむ)
1967年東京生まれ。早稲田大学第二文学部中退後、木材業界雑誌の出版社を経て1994年に株式会社建築知識(現:株式会社エクスナレッジ)に入社。月刊「建築知識」、季刊「iA」などの建築、インテリア専門誌の編集長を務める。2010年に退社。現在フリー。季刊「リノベーションジャーナル」(新建新聞社刊)の編集長を務める。主な著作に「リフォーム 見積り+工事管理マニュアル」(建築資料研究社)、「世界で一番やさしい仕上材(内装編)」(エクスナレッジ)、「心地よい住まいの間取りがわかる本」(同)がある。
第70回「郊外の地下室付き住宅のリフォーム」<その1>

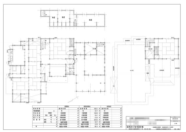
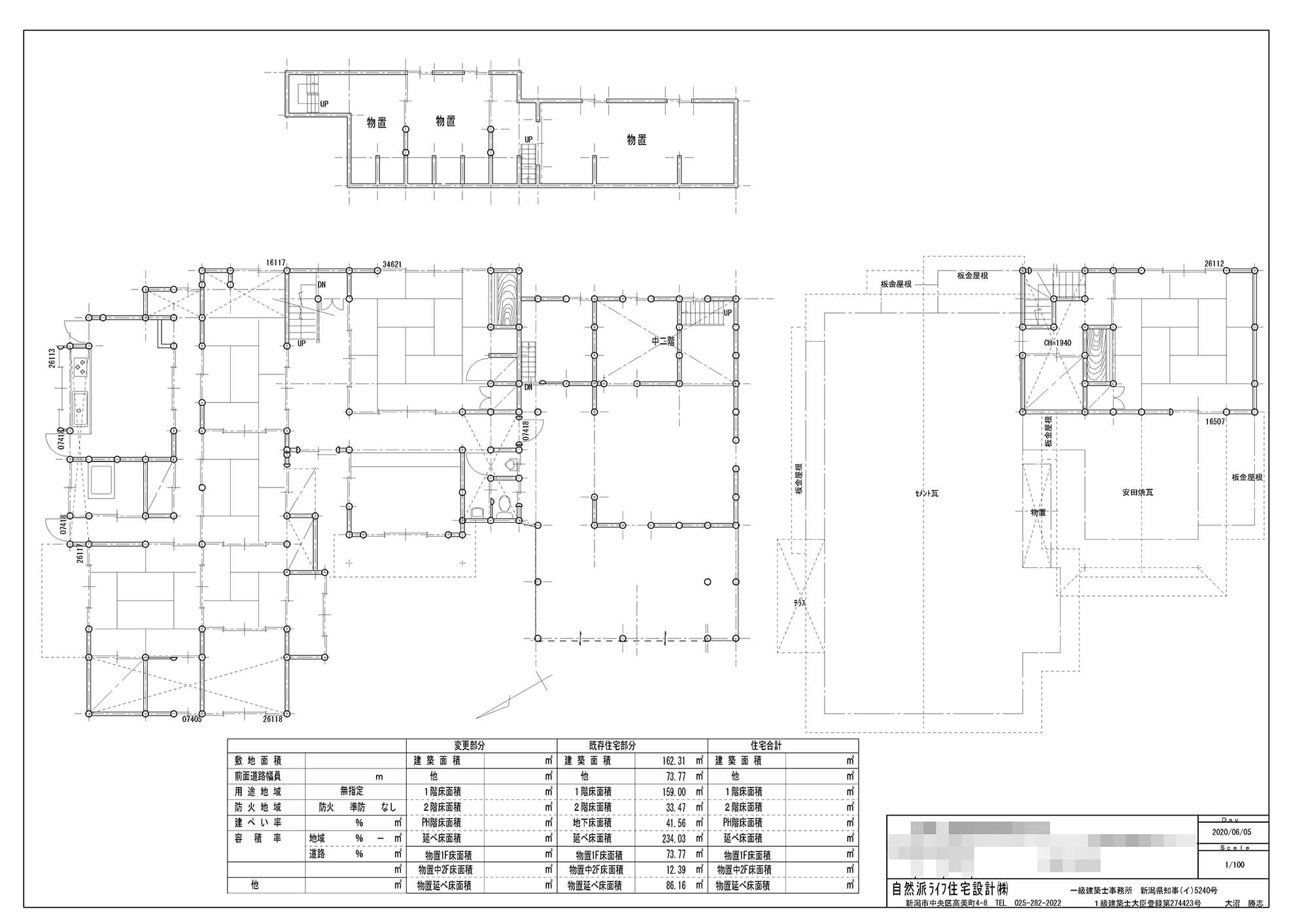
- <リフォーム前の平面図>
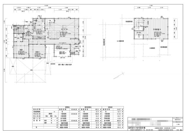
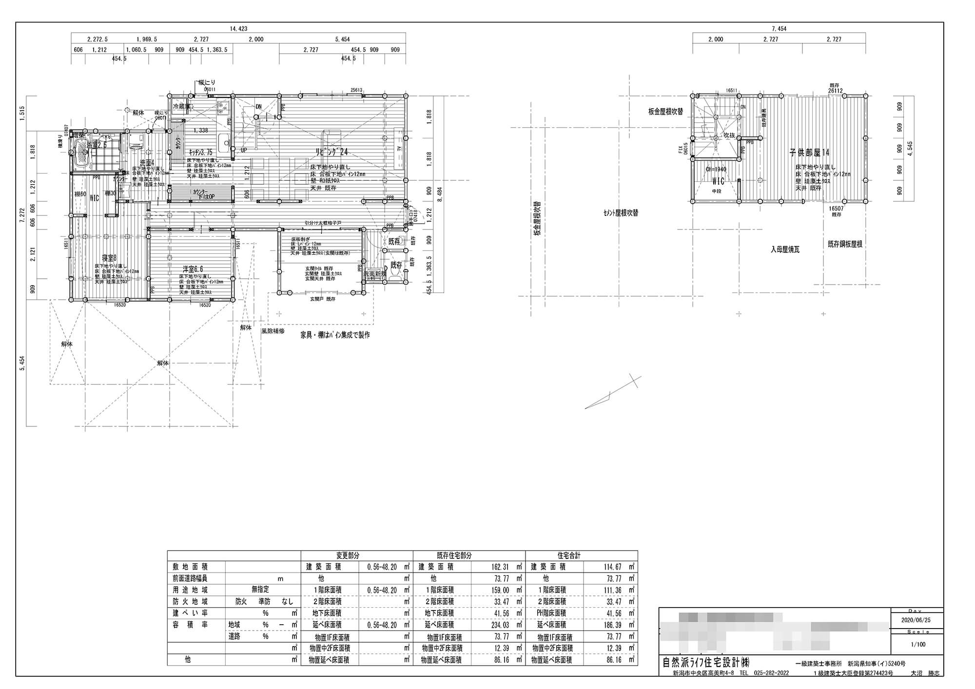
- <リフォーム後の平面図>
Aさん夫妻はともに 30代で、3人の子どもをもつ5人家族。長らく新潟市郊外の借家に暮らしてきたが、数年前から持ち家がほしいと考えるようになった。当初は住宅取得の費用を抑えるため建売住宅を想定していたが、Aさん夫妻が暮らす地域は昔からの住宅街で、建売住宅が売り出されることはなかった。市の中心地の建売住宅を購入することも考えたが、地元への愛着が強く、見学などはしなかった。


夫の父親の再婚相手は工務店に勤めていたため、父親は大規模リフォームで間取りを一新し、新築並みに性能向上を図ることが可能であり、金銭面でも有利だと知っていた。
地元で値ごろな物件に出会う
中古物件は夫がインターネットで探したが、めぼしい情報はそれほどなかった。地域に空き家はたくさんあったが、売り主の意向で公開されていない物件も多かった。子どもが今の小学校に通える範囲に絞ると物件数はさらに限られる。それでも気になる物件がいくつか見つかり、見学にも出向いたが、契約には至らなかった。







敷地は約200坪と広く、建て物も1・2階で床面積50坪を超え、そのほかに地下室と倉庫まで備えていた。不動産価格は約300万円。格安に感じるが、この築年数だと上物は評価されず、場合によっては解体費を引かれた価格になることがあるので、この地域では驚くほど安価でもないという。
物件自体には惹かれていたAさん夫妻だが、購入すると後戻りはできないため、最後の踏ん切りがつかなかった。夫の父親の勧めもあり、まずは義母の勤める工務店に大規模リフォームの可能性について相談をしてみることにした。
住宅ビジネスに関する情報は「新建ハウジング」で。試読・購読の申し込みはこちら。






























