YADOKARI(横浜市)は、一体型車検付トレーラーハウス「Tinys INSPIRATION」に全長9mの「30ftロングタイプ」を追加して3月14日に販売を開始した。
確認申請不要で、設置・継続車検の心配がない一体型車検付トレーラーハウス。
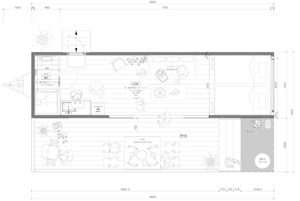
これまでの20ftサイズは、L6m×W2.5m、8畳の広さがあったが、今回の30ftロングタイプはL9m×W2.5m、12.5畳へと大幅にサイズアップした。ベッドに加え、ソファやダイニングテーブルなどを置いて大人数でも過ごしやすくなった。
また、サンデッキに出られる大きなテラス窓(W3510×H2230mm)、FIX窓(W2000×H1800mm)により外とのつながりを強調。別荘やファミリータイプの宿泊施設、店舗などとして幅広く利用できるとする。
680万円〜。


平面図

「Tinys INSPIRATION」 30ftロングタイプ

4枚引き違いの大開口とオプションのサンデッキで外と中をつなぐ
住宅ビジネスに関する情報は「新建ハウジング」で。試読・購読の申し込みはこちら。






























