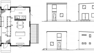
ユニバーサルホーム(東京都中央区)は、土間のある暮らしを提案する住宅商品「ドマーチェ」を10月1日に発売する。
独自の「地熱」を利用した地熱床システムと床暖房により、タイル敷きの土間床が夏は涼しく、冬は暖かくと、効果的に作用する。
外観は、大谷石調の質感と現代風にデザインした和の印象を加えた「ジャパニーズモダンタイプ」と大谷石調の質感ある外壁にモダンな印象に立体的な陰影を持たせ「クールモダンタイプ」の2通り。
価格は工事面積40坪以上で、標準地域で31.7万円/坪 (税別)から。

住宅ビジネスに関する情報は「新建ハウジング」で。試読・購読の申し込みはこちら。






























