G2化する際の最も大きな問題がコストと施工性。コスト増を最小限に抑え、ムラのない施工を実現する仕様の組み立て方について、東京・小平の人気工務店、ウッドシップ代表の酒井忠雄氏に聞いた。
住宅の特徴と断熱気密との関係
土地の価格が高い都心における狭小住宅を展開
◉イニシャル/ランニングとも費用対効果を重視した家づくり
➡こなれたコストで提供、施工難易度が高くなくて確実に性能が出る、結露やシロアリなど耐久性に影響がないことを重視した仕様に。断熱性能を効率的に高めて快適で光熱費を抑えるために外皮性能はG2が標準
◉高性能・高耐久、小さくても暮らしやすい開放的な間取り、自然素材中心の内装
➡断熱性能を高めることで簡易な空調で温度ムラのない環境がつくれる

実例の外観と内観。土地の価格が高い都心における狭小住宅(左)と断熱性能を高めることで簡易な空調で温度ムラのない環境(右)を実現
仕様の考え方
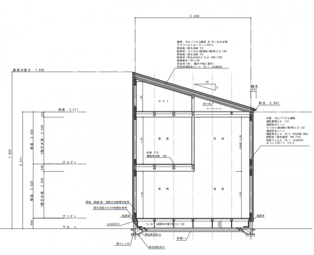
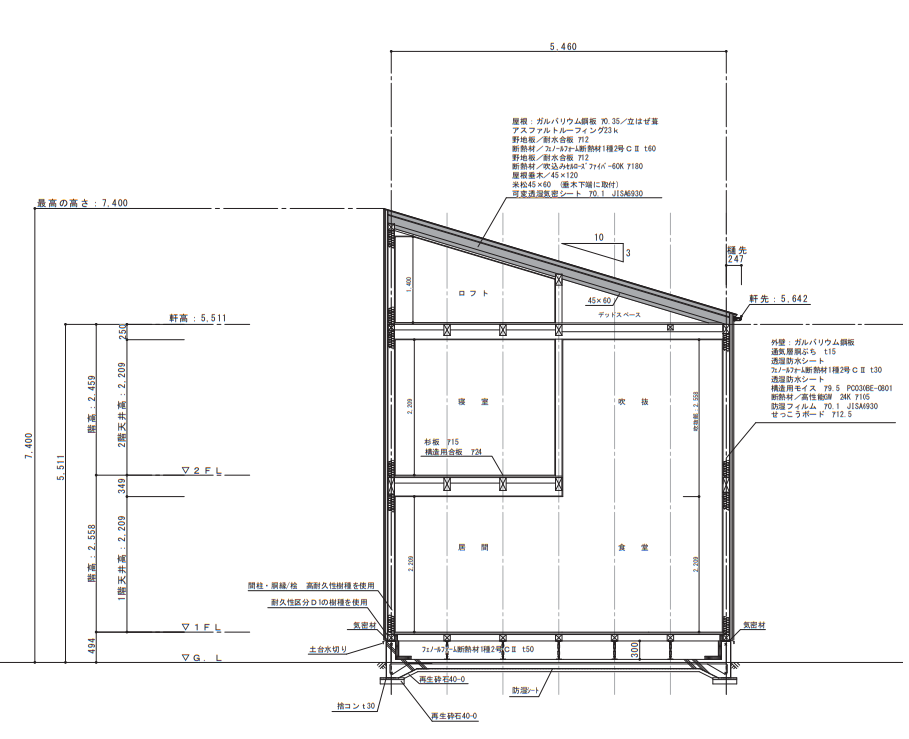
標準がUA値0.45、オプションがUA値0.35
◉建物上部は屋根断熱でセルロースファイバー180mm厚、壁は充填断熱で高性能グラスウール105mm厚、建物下部は基礎内断熱でフェノール50mm厚、窓は樹脂サッシ+Low-Eペアガラスアルゴンガス入り
➡ 上記によりUA値0.45程度となる
◉オプションとして付加断熱とトリプルガラスを採用。UA値0.35程度になる
➡ 付加断熱は屋根断熱がフェノール60mm厚、壁がフェノール30mm厚。窓は樹脂サッシ+Low-Eトリプルガラスアルゴンガス入り
◉この仕様だと外皮性能を計算しなくても仕様規定で省エネ基準をクリアできるので建て主への説明義務が果たしやすい
◉仕様変更は現場の混乱を避けるため一気に行う。契約後の物件のコスト増は自社負担
窓① サッシ・ガラスの変遷
◉窓は一般的に流通している製品で一番性能のよいものに変えていっている
➡ 5年前にアルミ樹脂複合サッシ+Low-Eペアガラスアルゴンガス入りから樹脂サッシ+Low-Eペアガラスアルゴンガス入り(リクシルのエルスター S)を標準に変更した。ただし防火窓が求められる場合はサーモスX
◉加えて現在はLow-Eトリプルガラスアルゴンガス入り(エルスター X)をオプションに
◉樹脂サッシを標準に変更した当初は、コストアップになることもあり、建て主にアルミ複合との性能の違いを説明していた
➡ 現在はその仕様が定着。今の建て主は当たり前と思っているので特に説明はしていない
窓② ペアガラスとトリプルガラスの違い
◉ペアガラスからトリプルガラスに変えると快適性(体感)は明らかに改善される
➡ペアガラスと比べて雪が降った日など氷点下に気温が下がったときのコールドドラフトが明らかに少なくなる
◉トリプルガラスにすると結露も減る。窓の下側にうっすらと結露する程度になる
➡トリプルガラスの結露量はペアガラスの半分。ティッシュ1枚で拭き取れる量で収まる
◉掃き出し窓だけトリプルガラスに変えると10万円未満のコストアップ。すべての窓をペアガラスからトリプルガラスに変えると50~70万円アップ
➡滞在時間が長いLDKの掃き出し窓だけでもトリプルガラスにすることを勧めている。費用対効果も高い

ペアガラスとトリプルガラス
屋根① 外張り断熱から充填+付加断熱に
◉天井断熱は結露リスクが高いことと夏の遮熱を重視して建物上部は屋根断熱を採用
➡ 天井裏は環境的に夏に居室以上に暑くなり、冬には寒くなる。さらに電気配線が施工されダウンライトなど取り合いもある。吊り木も林立。グラスウールがきれいに入れられない。気密施工も困難
◉最初はフェノールフォーム60mm厚を外張りしていたが、・・・・・
この記事は、『新建ハウジング別冊・ワンテーママガジン2021年8月号 コロナで見えてきた スマートビルダー&スマートハウス/攻めと守りの技術研究所・初めてのG2住宅』(2021年7月30日発行)P.98~111に掲載しています。
住宅ビジネスに関する情報は「新建ハウジング」で。試読・購読の申し込みはこちら。






























