BESSブランドを展開するアールシーコア(東京都渋谷区)はこのほど、自社が提供する都市型スローライフ住宅「ワンダーデバイス」との外観デザインの類似を理由として東京地方裁判所に提訴していた訴訟について、勝訴したと発表した。同社によれば、4月に施行された改正意匠法で、建築物の外観や内装デザインを保護対象として意匠登録できるようになって以降、住宅デザインの意匠権としては初の判例という。

BESSブランドで提供する「ワンダーデバイス」の例(左)と被告商品の例
同訴訟は、地方の住宅会社が販売する建売住宅の外観がワンダーデバイスの外観デザインと類似するとして、販売等の差し止めや損害賠償などを求め、2018年8月10日に東京地方裁判所に提起したもの。判決では、被告の同住宅会社の商品(住宅)の販売行為などが「意匠権侵害」に当たると判断され、アールシーコアが保有する意匠権(意匠登録第1571668号)が認められた。同住宅会社に対しては、アールシーコアが保有する意匠権に抵触する建物の製造や販売、販売の申し出、販売のための展示の禁止と、同社への損害賠償金の支払いが言い渡された。

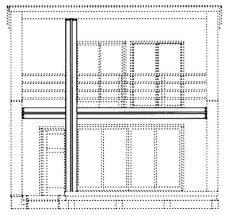
意匠登録第1571668号の正面図。実線で表した部分が「部分意匠」として意匠登録されている。正面の柱と梁で十字を構成する印象的なデザインが特徴
同社はBESSブランドのデザインを「BESSの住宅で実現してほしい暮らしの価値観」を集約して表出させたものと考え、ブランドを構成する大きな要素として位置付けている。同社は判決について「BESSユーザーへのブランドとしての責任を果たすとともに、誤認混同の回避による消費者保護につながるもの」と評価し、「今後も引き続き住宅市場の健全な発展を促すべく、デザイン・ブランド保護の重要性を発信するとともに、さらなるブランド価値創出に向け必要な措置を講じていく」としている。
住宅ビジネスに関する情報は「新建ハウジング」で。試読・購読の申し込みはこちら。
































